ประเภท
คอนโดห้องนอน
1ห้องน้ำ
1ห้องรับแขก
0แบรนด์
เกี่ยวกับ
- นิช ไอดี พระราม 2 - ดาวคะนอง Living Large In The Super Spacious Space ขยายความสุขให้คุณสบายมากกว่า ใกล้ทางด่วน ใช้ชีวิตเมืองได้อย่างรวดเร็ว - PRICE 1.49 ล้านบาท* - LOCATION พระราม 2 - ดาวคะนอง - PROJECT TYPE คอนโด Low Rise 8 ชั้น - ไม่ไกลจาก เซ็นทรัล พระราม 2, บิ๊กซี โลตัส โฮมโปร และเกตเวย์ พระราม 2 (ในอนาคต) พร้อมทั้งใกล้สถานพยาบาลสำคัญได้แก่ รพ. บางปะกอก 9, รพ. บางมด, รพ. นครธน และรพ. กรุงธน 2 ใกล้ รร.อัสสัมชัญ แคมปัส พระราม2, รร.วรรณสว่างจิต, รร.สมิทธิพงษ์, ม.เทคโนโลยีพระจอมเกล้าธนบุรี
รายละเอียด
รหัส :13
ประเภท :คอนโด
วันที่ลงข้อมูล :1 มกราคม 2513
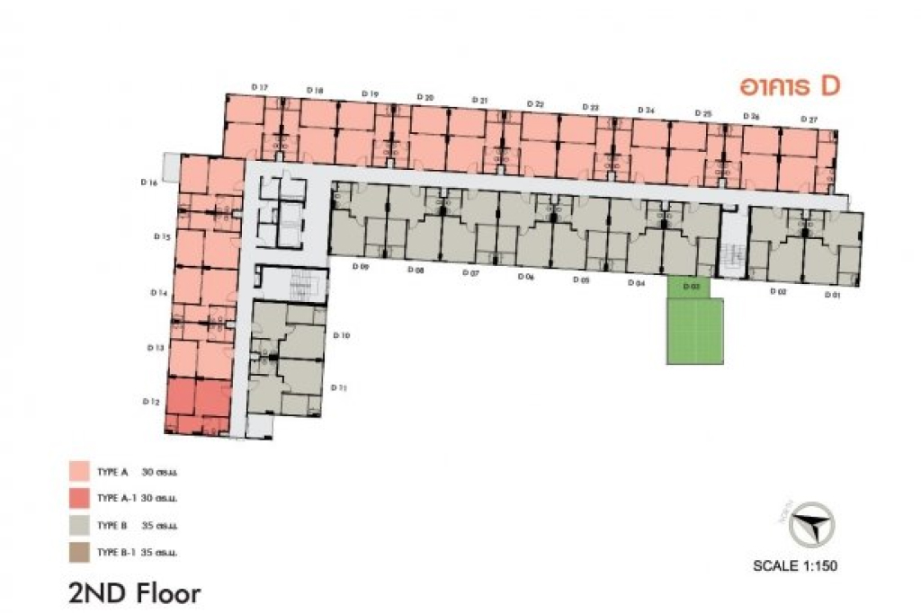
ราคา :฿ 1,819,500 - 2,256,800
พื้นที่ใช้สอย :30 - 35 ตร.ม.
ห้องนอน :1
ห้องน้ำ :1
ห้องรับแขก :0
ห้องครัว :0
ที่จอดรถ :0
ชั้น :2,7
แผนผังห้อง



สิ่งอำนวยความสะดวก
สถานที่ใกล้เคียง
มุมมองถนน
ติดต่อสอบถาม